Ephesus Plans
Floor Plans
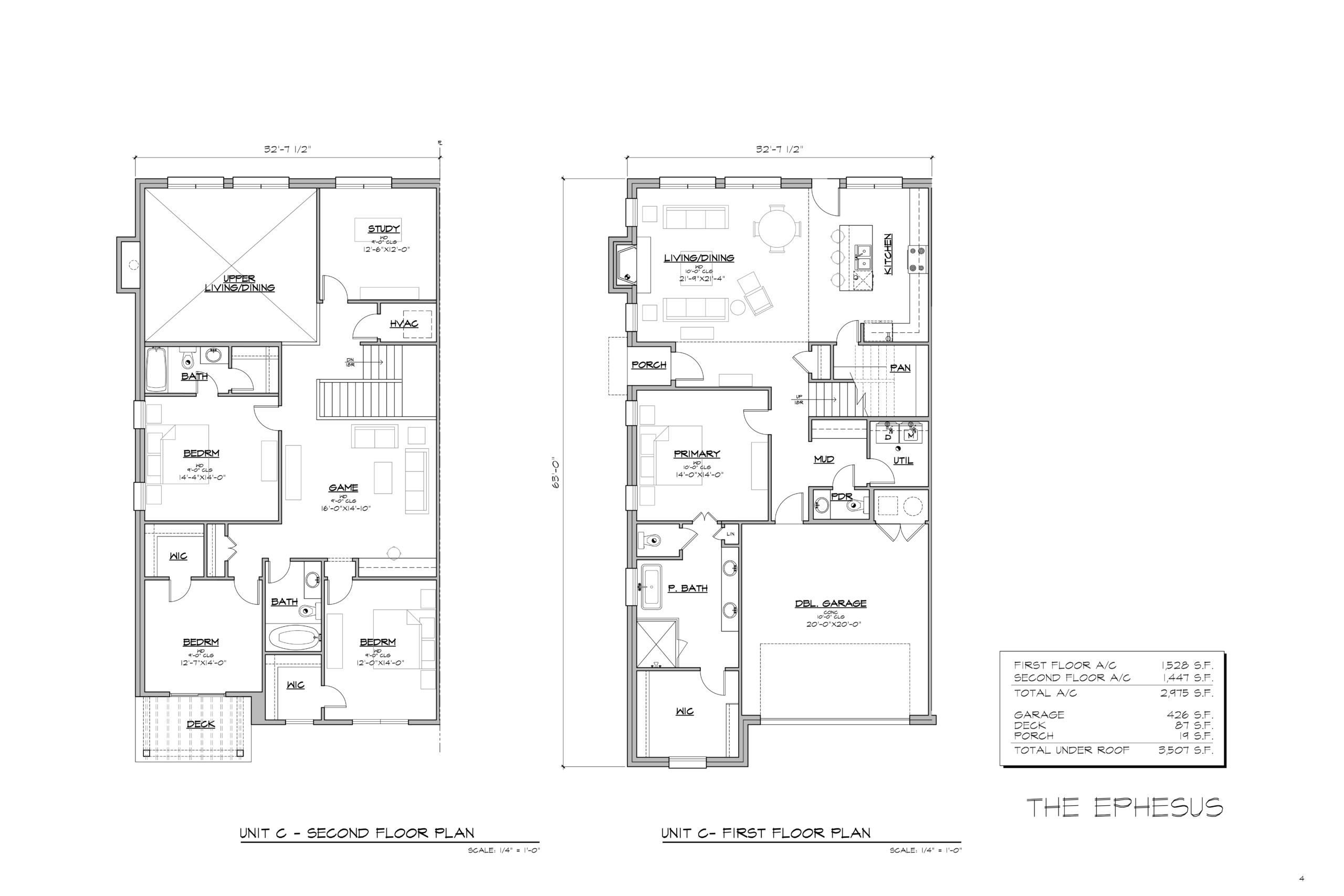
The Ephesus.
About The Ephesus.
The Ephesus brings a spacious main floor with an open living–dining area, a well-arranged kitchen, a large primary bedroom with walk-in closet and bath, plus a mudroom, pantry, and double garage. Sliding doors open to a rear patio for easy indoor–outdoor flow.
The upper floor adds an open living space, a game room, a study, two bedrooms, a shared bath, and a private deck, with an optional attic study for added flexibility.
A balanced layout that feels bright, roomy, and easy to live in.
- Lecturer, Medical Malpractice and Tort Matters to Legal Community, New York State Trial Lawyers Institute
- Lecturer, Medical Malpractice and Tort Matters to Legal Community, American Association for Justice
- Pretrial Issues in Laparoscopic Negligence Cases,” ATLA Professional Negligence Section Newsletter
- Legislative Caps Take Away the Judge’s Function,” New York Law Journal
